11300型辅助承重手术室专用结构

11300型辅助承重手术室专用结构
11300型辅助承重手术室专用结构

产品详细描述:

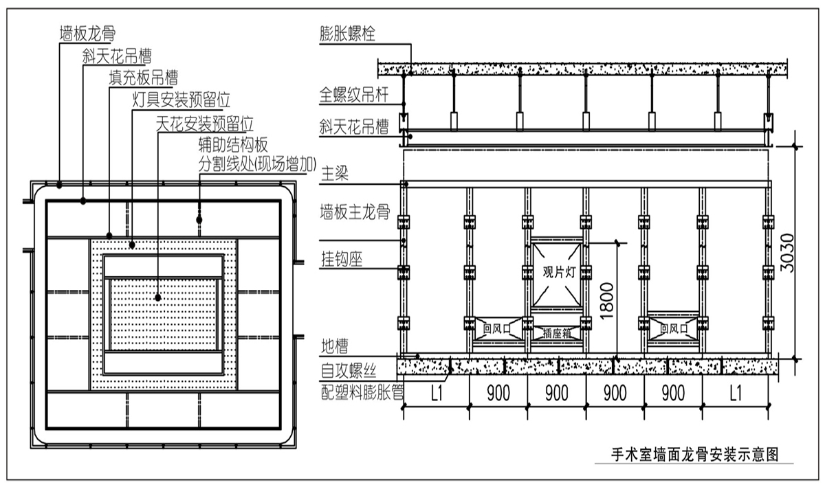
1、产品应用:普遍用于以电解钢板、为主体材料制作的预制式手术室的承重结构。

2、注意事项:①该结构类型中结构要同土建结构固定、顶部需要打丝杆进行吊装;②墙板适用于挂装形式,斜板及填充板适用于快速
卡/夹码固定安装形式。

产品技术参数

用料:50x30x1.8镀锌钢管、1.0~1.8厚镀锌钢板等。