首页
关于我们
集团简介
创始人简介
文化理念
荣誉资质
信息中心
铭铉动态
国内动态
国际动态
医疗器械行业标准
技术展示
净化装饰装修材料及配套产品
净化空调系统及配套产品
中央医气供应系统及麻醉废气排放系统
手术部/ICU专用配套设备及产品
净化照明系列产品
贸易产品
喷绘选图
工程案例
合作伙伴
工程展示
人才招聘
人才理念
招聘岗位
联系我们
EN
搜索
首页
关于我们
集团简介
创始人简介
文化理念
荣誉资质
信息中心
铭铉动态
国内动态
国际动态
医疗器械行业标准
技术展示
净化装饰装修材料及配套产品
净化空调系统及配套产品
中央医气供应系统及麻醉废气排放系统
手术部/ICU专用配套设备及产品
净化照明系列产品
贸易产品
喷绘选图
工程案例
合作伙伴
工程展示
人才招聘
人才理念
招聘岗位
联系我们
首页
各类门窗与屏风
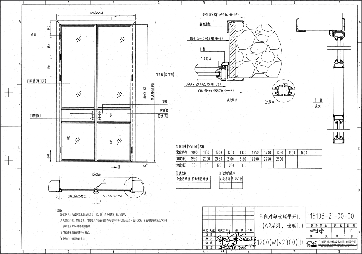
11#单向对等平开门(玻璃)
11#单向对等平开门(玻璃)
产品详细描述:
①门框及装饰边框可选用铝型材、不锈钢或电解钢板加工,
门框厚度不低于1.2mm。
②门页采用8mm-10mm厚钢化玻璃加工。
③门体两侧及上部为胶条密封,门体底部可选择扫地胶条密封及按压式密封装置密封工艺处理。
④配套五金件包含门合页及门锁等。
产品技术参数
1、门扇宽度:1100~1800
2、门扇高度:1900~2300
3、窗户选型:①方窗300x400;②条窗180x780;③无框圆角方窗300x400或400x600
4、适合墙体:彩钢板、玻镁板、轻钢龙骨隔墙、砖墙等
简介
产品
案例
美图
新闻
EN