首页
关于我们
集团简介
创始人简介
文化理念
荣誉资质
信息中心
铭铉动态
国内动态
国际动态
医疗器械行业标准
技术展示
净化装饰装修材料及配套产品
净化空调系统及配套产品
中央医气供应系统及麻醉废气排放系统
手术部/ICU专用配套设备及产品
净化照明系列产品
贸易产品
喷绘选图
工程案例
合作伙伴
工程展示
人才招聘
人才理念
招聘岗位
联系我们
EN
搜索
首页
关于我们
集团简介
创始人简介
文化理念
荣誉资质
信息中心
铭铉动态
国内动态
国际动态
医疗器械行业标准
技术展示
净化装饰装修材料及配套产品
净化空调系统及配套产品
中央医气供应系统及麻醉废气排放系统
手术部/ICU专用配套设备及产品
净化照明系列产品
贸易产品
喷绘选图
工程案例
合作伙伴
工程展示
人才招聘
人才理念
招聘岗位
联系我们
首页
各类门窗与屏风
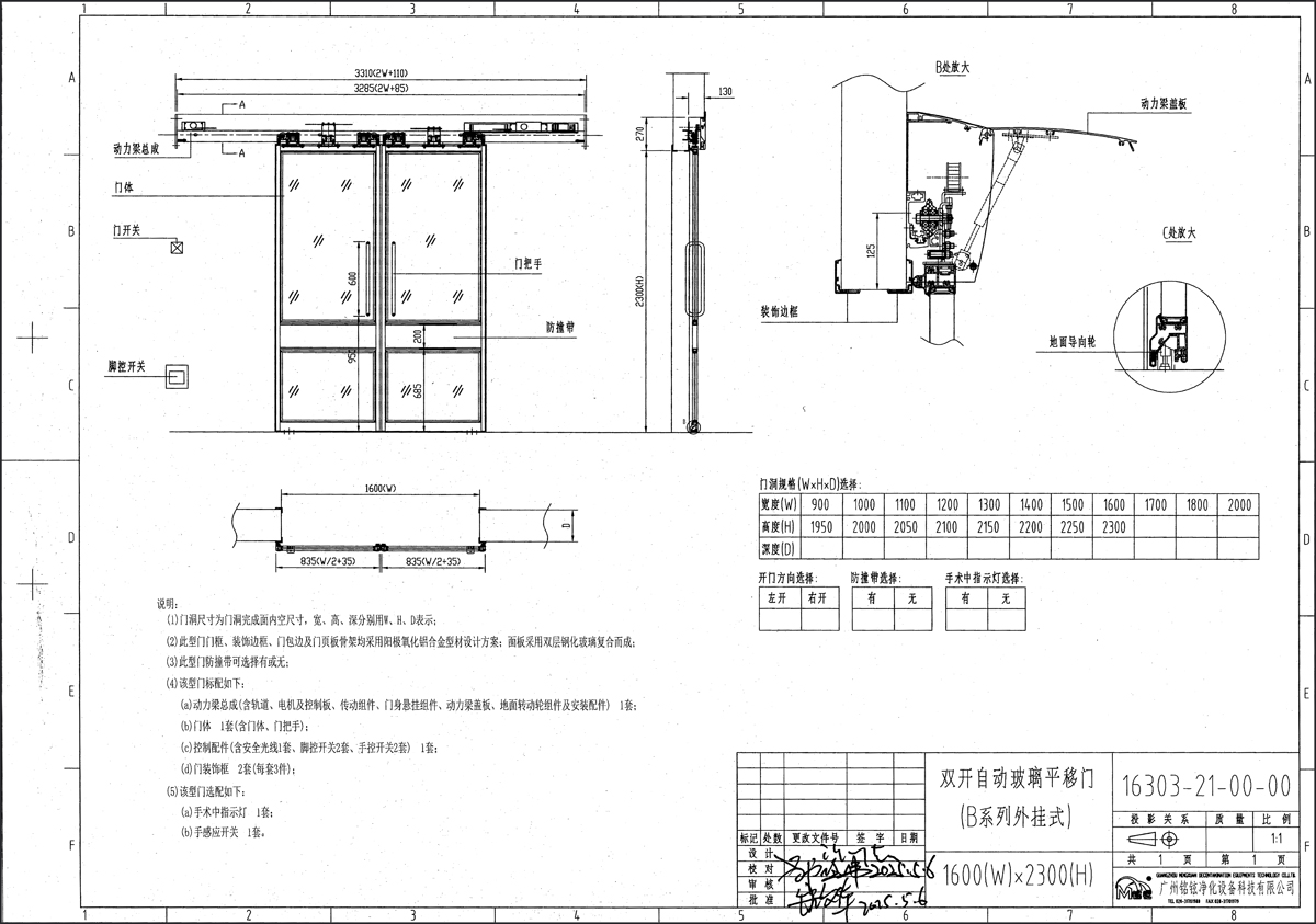
18#外挂式双开平移门(玻璃)
18#外挂式双开平移门(玻璃)
产品详细描述:
①门框为铝型材,门头盖采用优质铝型材制造,可翻开检修。
②门页板采用8mm-10mm钢化玻璃;专用不锈钢拉手。
③路轨为高强度铝合金一体成型,双轨组成,内加防震胶条,动力梁采用欧式双层密封加工, 特有U型轨道和圆弧凹槽设计。
④手按及感应开关、门禁及无线开关任选。
⑤门框安装防夹安全光线。
产品技术参数
1、门扇宽度:1300~2000
2、门扇高度:2000~2300
3、窗户选型:①方窗300x400;②无框圆角方窗
300x400/
600x400
4、适合墙体:彩钢板、玻镁板、轻钢龙骨隔墙、砖墙等
简介
产品
案例
美图
新闻
EN